James Fahy House plans home and floor plans Rochester NYHOMEPLAN SEARCHDESIGN SERVICESGENERAL IINFOPHOTO GALLERY
James Fahy House plans home and floor plans Rochester NY






Plan Details | Front Elevation | Rear Elevation | First Floor | Second Floor | Second Floor |


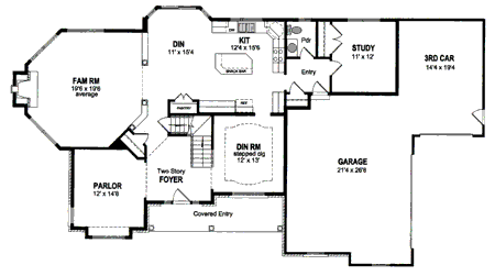
Plan No: 20-2896-2-A00-454 - First Floor - 1586 s. f.


20-2896-2-A00-454-1st-lg

DISPLAYING PLAN 558
of 680 TOTAL PLANS
« PREVIOUS NEXT »
Btn_addToCart
Return to your
Search Results
CLICK IMAGE
FOR PRINT VERSION

Floor Plan Dimensions on illustrations are approximate.
Consult the working drawings for actual dimensions, and all construction notes and details.

Architect in Rochester, NY Residential Home Plans Multi-Family Plans Custom Home Designs House Plans

tel: 585-272-1650 (locally)
tel: 800-295-6665 (toll-free)
hours: M-F 8:30 am–5:00 pm (Eastern Standard Time)
fax: 585-272-1008
info@jamesfahy.com
James Fahy Design
2024 W. Henrietta Rd. Suite 3K
Rochester, NY 14623

Copyright © 2006 James Fahy Design. All rights reserved. | Web site Design by Blair Design Studio

house plans : home plans : floor plans : rochester ny : james fahy design : architectural engineering design